悅四季三房車(預售) (AA6324246)
總價 899 萬元 (含車位) 降價通知我
座落 桃園市楊梅區民豐段
坪數 36.63
不含公設車位為 26.36
地坪 8.05
物件型態 華廈
用途現況 住家; 預售
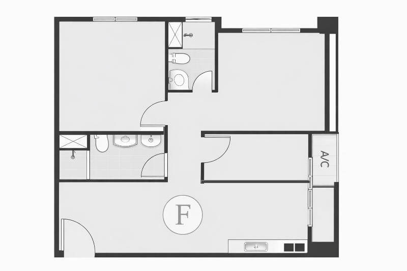
格局 3房/ 2廳/ 2衛
樓層 6 / 9樓
車位 坡平
邊間 不詳
學校學區 市立上田國小  市立瑞原國中
商場市場 楊梅市場
特色說明
即將完工,全新入住 近楊梅市區,近國中小 總總價好入手 B1平面大車位
權狀資料
主建物 16.61 附屬建物 1.08
公共設施 18.94 土地面積 8.05
公設車位 10.27 權狀車位 0.00
使用分區 特定農業區
  1. 坪數=主建物+附屬建物+公共設施(包含公設車位)+權狀車位。
  2. 主建物係指客廳、餐廳、臥房、浴室、廚房等室內面積。
  3. 公共設施係指區分所有建物之全部或部分所有共用之建物面積,像是樓梯間、電梯間、屋頂突出物等。
  4. 上述係由一平方公尺=0.3025坪換算,詳細資料仍以地政機關核發之謄本為準。
埔心萬大加盟店
程皓地產有限公司
(03)482-6699
感謝點閱,歡迎與我聯絡!
您好,我是黃詩尹。
請撥我的手機 0910-356-064
或加我 LINE 好友
由我為您提供服務。

※ 本網頁所刊登照片如為道路街景或土地示意圖,非廣告標的所在地僅供參考,實際狀況請依使用執照或謄本所載為準。
悅四季三房車(預售),桃園市楊梅區民豐段
悅四季三房車(預售),桃園市楊梅區民豐段
悅四季三房車(預售),桃園市楊梅區民豐段
悅四季三房車(預售),桃園市楊梅區民豐段
悅四季三房車(預售),桃園市楊梅區民豐段
悅四季三房車(預售),桃園市楊梅區民豐段

資料處理中,請稍等。